Our Process

We design and build bespoke kitchens in our workshop in Shenley. Every cabinet is made in‑house, with a focus on solid construction, good materials, and careful workmanship. Our aim is to create kitchens that are practical, long‑lasting, and suited to the way you live.

We work with clients across Hertfordshire and nearby areas, managing the process from early planning through to installation.

Design consultation

We begin with a design consultation to understand what you need from your space. A site visit is arranged if required. This allows us to take accurate measurements and understand the layout, services, and any constraints.

Design presentation

You then receive a full design presentation, which includes:

  • technical drawings

  • a three‑dimensional render

  • proposed paint colours

  • hardware options

  • any other relevant details

This gives a clear sense of how the finished kitchen will look and function. We refine the drawings and details through further conversations until everything is agreed.

If you would like to see how our designs translate into finished work, our Portfolio shows a selection of recent kitchens and furniture.

Design presentation showing paint colours, hardware options, and material samples for a bespoke kitchen.
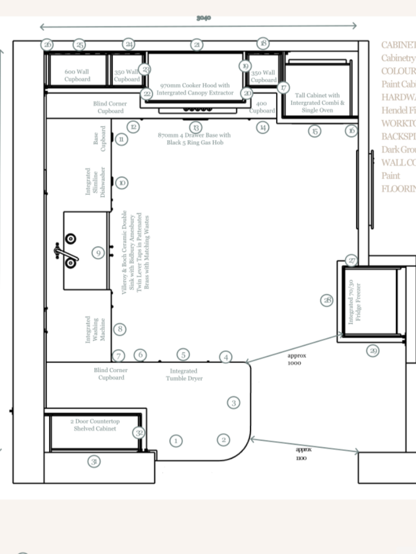
Technical drawing of a bespoke kitchen layout with measured cabinetry and appliance positions.
Three‑dimensional render showing the proposed layout and appearance of a bespoke kitchen design.

Project Options

We offer two ways to approach the work, depending on what suits you best.

Full project management

We can take on the entire project from start to finish. This includes removing the existing kitchen, coordinating all works, and managing our partner electrician and plumber. This option keeps everything organised and usually leads to the most efficient completion.

Manufacture and installation only

If you already have trades in place, we can simply manufacture and install the kitchen. Your chosen trades can complete the preparation works using our technical drawings.


Workshop Manufacture

Once the deposit is paid, we begin work in our Shenley workshop. We manufacture all cabinetry in‑house, from the initial components through to final assembly, with the exception of the last paint finish.

Working from the agreed technical drawings ensures accuracy throughout and prepares everything for a straightforward installation on site. You can read more about our material and paint choices here.

Solid tulipwood face frames being cut and prepared in the workshop.
Solid wood frame assembled with dowels, glued, and clamped in the workshop

Installation

When the kitchen is ready, we install it ourselves to ensure everything is fitted exactly as intended and to keep the process consistent from design through to completion. We coordinate with any required trades and work to the agreed drawings so the installation is carried out in an organised and efficient way.

After installation, we carry out the final hand‑painted finish on site using Little Greene paint for its durability and wide range of colour options. You can find more information about our process in our FAQ section.

Cabinet handles being carefully measured and marked for handle  fitting
Kitchen cabinets being levelled and adjusted during installation
Cabinet joints being caulked and prepared for the final hand‑painted finish

Every kitchen or piece of furniture we make follows this same careful process, from first sketches to final installation. If you would like to see how this process comes together in real homes, our Portfolio shows a selection of recent work.

Contact Us

Interested in working together?

Call us on 07739 51046

Email us at info@northern-roots.co.uk

Or complete our contact form.

We will be happy to discuss your ideas, answer any initial questions and guide you through the next steps.